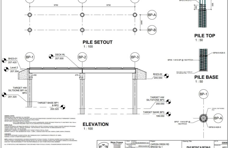
Design of Piling for Council Bridges

Nambucca Engineering were engaged to do flood modelling and piling design for multiple bridges within the Kyogle Council LGA.